z型斗式提升机厂家
发布时间:2026-03-19 09:18:50作 者:大汉机械来 源:未知
想要获取更多产品信息?立即咨询
z型斗式提升机厂家实力
z型斗式提升机生产厂家有很多家,每一家都有各自的优势。但是生产斗式提升机的厂家不一定会生产z型斗式提升机,生产z型斗式提升机的厂家有更好的研发实力,更懂得复杂的技术升机。

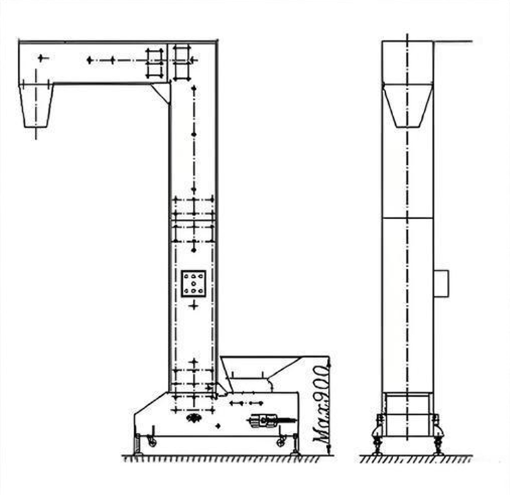
z型斗式提升机对结构、链条、料斗以及其他配置的设计都有更高的要求,这种设备能够稳定的完成水平 — 垂直 — 水平连续输送,能够适应更多的工作环境。可以根据实际的使用情况去进行合适的选择。

z型斗式提升机厂家生产产品类型
生产z型斗式提升机的厂家,还有生产出多种类型的z型斗式提升机。有Z型环链斗式提升机、Z型板链斗式提升机、Z型带式斗式提升机等类型。重工业方面可以用环链式,大规模使用可以用板链式。为了方便使用,有的厂家还有生产移动式Z型提升机和固定式Z型提升机,移动式的设备会在底部安装脚轮,能够灵活转换场地,可以用在各种小型车间。固定式的直接固定在地面上,使用更加安稳可靠。

z型斗式提升机厂家如何选择?
选择合适的生产厂家,要注意了解厂家的产品质量、售后服务和价格等多种因素。像我们大汉生产厂家,我们家生产的z型斗式提升机,有碳钢材质和不锈钢材质,当用在对卫生要求较高或有腐蚀性的物料时要选用不锈钢材质。还有单点和多点出料口选择,还能够添加浅斗、深斗、耐磨斗等料斗。水平段最长可以做到40米,在一段水平段最多可以添加5个进料口,并且如果有防爆需要,还能够添加防爆电机,设计泄爆口等多种方式选择。

我们大汉生产厂家是有着十几年生产经验,有着专业的技术团队。如果有其他需求,还可以随时联系我们定制不同的配置。
(本文由大汉螺旋输送机编辑整理发布,转载请注明出处:www.luoxuanshusong.net)一直被模仿,从未被超越!
- 上一篇:双轴螺旋输送机厂家
- 下一篇:z型斗式提升机和垂直螺旋输送机区别




